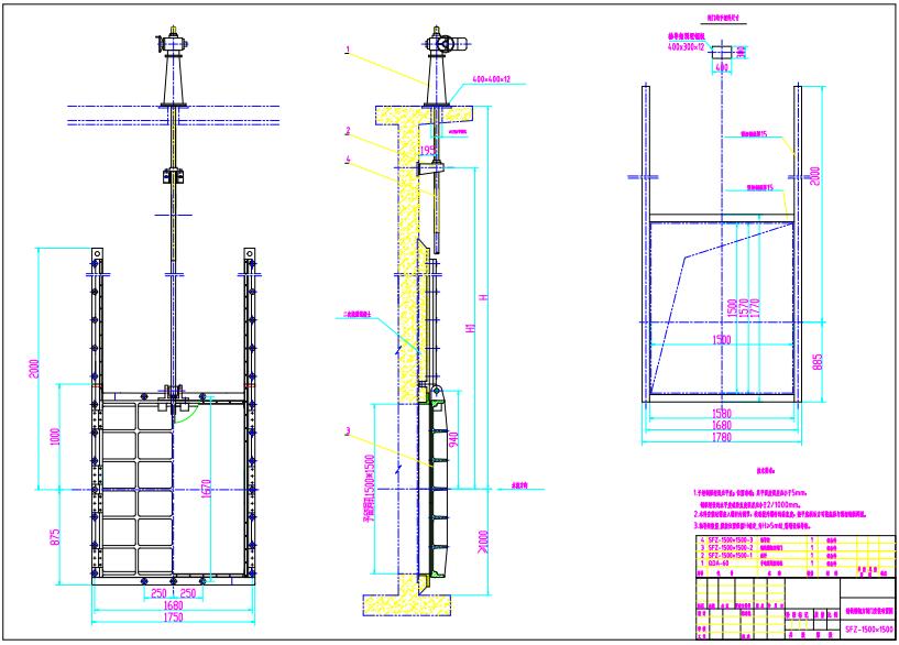
SFZ1500鑄鐵方閘門安裝圖紙下載
SFZ1500鑄鐵方閘門安裝圖紙

服務熱線13852217951
SFZ1500鑄鐵方閘門安裝圖紙下載 ,我們提供DWG圖紙下載查閱,CAD軟件可查閱。

SFZ1500鑄鐵方閘門安裝要點說明:
1、檢查洞口是否符合土建尺寸要求,洞口平面應盡量平直。
2、檢查預留孔或預埋螺栓位置是否正確。
3、閘門在運輸過程中的變形及損傷,要進行全面的檢查和修整,注意同規格閘門的門體、門框不允許互換,且未安裝前必須水平放置, 防止鑄件變形影響止水效果,同時絲桿以及聯接桿不可受力彎曲。
本文來自于:m.zptrgy.com